
物件NO:
| 〈中古一戸建て〉 前橋市江木町・中古住宅 | |||
|---|---|---|---|
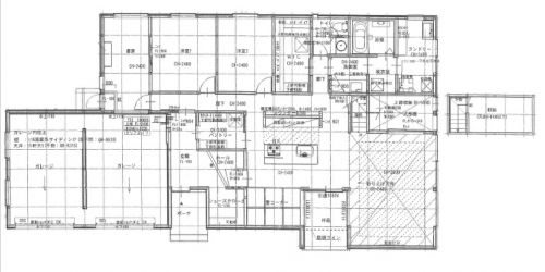
| 前橋市江木町・リフォーム済・中古住宅!土地・約285坪、建物・令和3年4月新築・平屋建・約54.6坪! | |||
|
|||
| 所在地 | 群馬県前橋市江木町 | ||
| 交通 | 江木駅 より徒歩14分 | ||
| その他交通 | |||
| 間取り | 3LDK+S | ||
| 建物面積 | 180.52m2 54.61坪 |
土地面積 | 942.69m2 285.16坪 |
| バルコニー | - | - | - |
| 価格 | 3,180万円 | - | - |
| その他費用 | - | ||
| 構造 | 木造 | 階数 | 1 |
| 向き | 南 | 築年月 | 2021年4月 |
| 駐車場 | 有 | 総戸数 | - |
| 建ぺい率 | 70% | 容積率 | 200% |
| 地目 | 宅地 | 地勢 | - |
| 都市計画 | - | 用途地域 | 指定なし |
| セットバック | - | 私道面積 | - |
| 接道 | - | 土地権利 | 所有権 |
| 現況 | リフォーム済 | 引渡時期 | 相談 |
| 国土法届出 | - | - | - |
| 設備/環境 | バリアフリー バス・トイレ別 エアコン フローリング TVドアホン | ||
| 備考 | 前橋市江木町・リフォーム済・中古住宅!土地・約285坪、建物・令和3年4月新築・平屋建・約54.6坪・ビルトインガレージ2台分有!リフォーム済でいつでも内覧可能です。お気軽にお問い合わせください | ||
| 取引態様 | 仲介 | 情報登録日 | 2025年11月30日 |
